Imperium Architects

RD Točná

O projektu

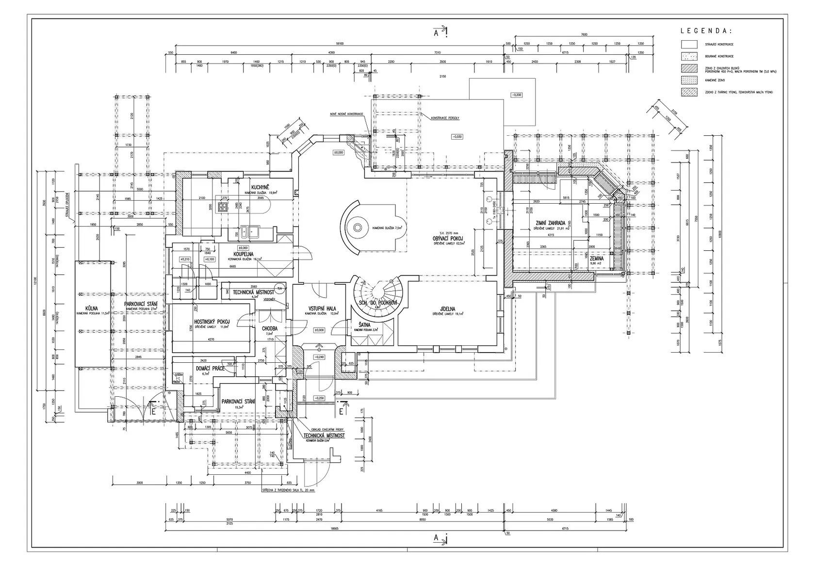
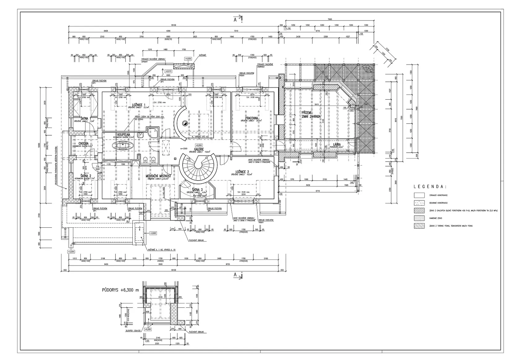
Projekt RD Točná (2012) představuje komplexní architektonický návrh rodinného domu, který propojuje technický konstruktivismus s přírodní estetikou.
Dům je zasazen do rozlehlé zahrady a tvoří jej prostorově členitý objem, který kombinuje ocelovou konstrukci, režné zdivo a měděný plášť. Tyto materiály společně vytvářejí výraznou, nadčasovou architekturu s industriálním charakterem, přesto harmonicky reagující na okolní zeleň.

Exteriér je definován otevřenou ocelovou strukturou, která rozšiřuje obytný prostor směrem do zahrady a umožňuje prolínání interiéru s exteriérem. Dům využívá velkoformátová okna a prosklené stěny, které přinášejí dostatek denního světla a vizuální propojení s krajinou.

Interiér navazuje na industriální princip – odhalené nosné prvky, kombinace kovu, dřeva a cihelného zdiva, skleněná zábradlí i technické detaily ponechané v přiznané podobě. Interiér uspořádaný dle zásad feng-šuej. Prostoru dominuje spirálové schodiště s dřevěnými stupni a skleněným zábradlím, které propojuje jednotlivé úrovně domu a stává se výrazným sochařským prvkem.

Celkový návrh stojí na kontrastu robustní konstrukce a jemné architektonické práce s detailem. Dům působí současně technicky i poeticky – jako dialog mezi přírodou, materiálem a světlem.

Autoři projektu

Imperium Architects je architektonické studio, které propojuje estetiku, funkčnost a dlouhodobou hodnotu. Vytváříme nadčasovou architekturu a interiéry promyšlené do posledního detailu – od konceptu po realizaci.

Naše zaměření:

Rodinné domy na míru – individuální návrhy v dialogu s klientem, s důrazem na kvalitu a harmonii s okolím.

Interiéry – luxusní i funkční řešení s důrazem na atmosféru, komfort a detail.

Developerské projekty – návrh bytových domů a celků s ohledem na architekturu, urbanismus i ekonomiku projektu.

Komerční prostory – kanceláře, restaurace, kliniky či wellness, kde spojujeme funkčnost a reprezentativní design.

Naše přidaná hodnota:
Spojujeme architektonickou kvalitu s ekonomickým myšlením. Každý projekt je esteticky přesvědčivý, funkční a zároveň ekonomicky udržitelný.

Zobrazit profil

SPOJME SE

Rádi vám poradíme / Konzultujte s námi / Ptejte se

Imperium Architects

www.imperiumestate.cz

www.imperium-architects.com

Telefon: Zobrazit telefon

Email: Zobrazit email